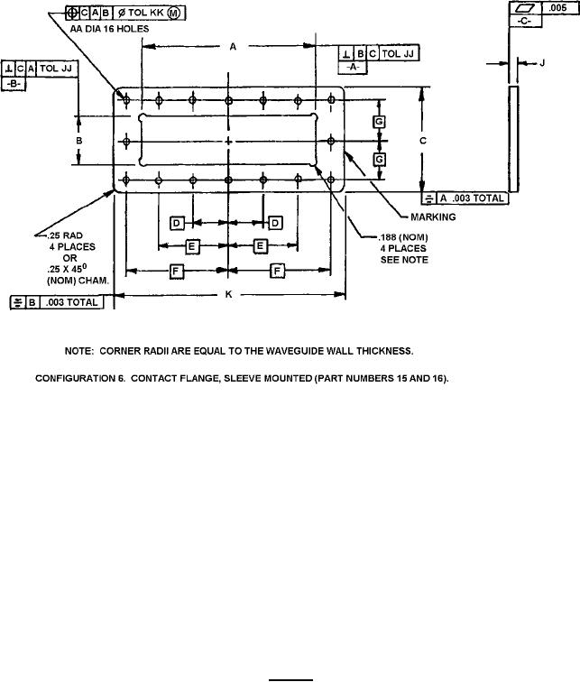
MIL-DTL-3922-75 Flanges, Waveguide, Reduced Height