
INCH-POUND
MIL-DTL-3922/75D
23 July 2013
SUPERSEDING
MIL-DTL-3922/75 C
15 August 2003
DETAIL SPECIFICATION SHEET
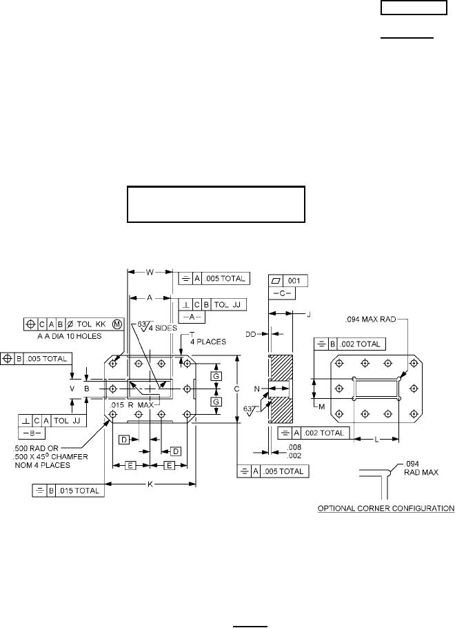
FLANGES, WAVEGUIDE, REDUCED HEIGHT
This specification is approved for use by all Departments
and Agencies of the Department of Defense.
The requirements for acquiring the flanges described herein
shall consist of this specification sheet and MIL-DTL-3922.
INACTIVE FOR NEW DESIGN
AFTER 8 MAY 1998
CONFIGURATION 1. CONTACT FLANGE, SOCKET MOUNTED (PART NUMBERS 01 THRU 04)
FIGURE 1. Flanges.
AMSC N/A
FSC 5985
For Parts Inquires submit RFQ to Parts Hangar, Inc.
© Copyright 2015 Integrated Publishing, Inc.
A Service Disabled Veteran Owned Small Business