
INCH-POUND
MIL-DTL-39030/3E
17 July 2013
SUPERSEDING
MIL-DTL-39030/3D
9 April 2004
DETAIL SPECIFICATION SHEET
DUMMY LOADS, ELECTRICAL, COAXIAL,
TYPE I (SMA), LOW POWER
This specification is approved for use by all Departments and Agencies of the Department of Defense.
The requirements for acquiring the product described herein shall consist of this specification sheet and
MIL-DTL-39030.
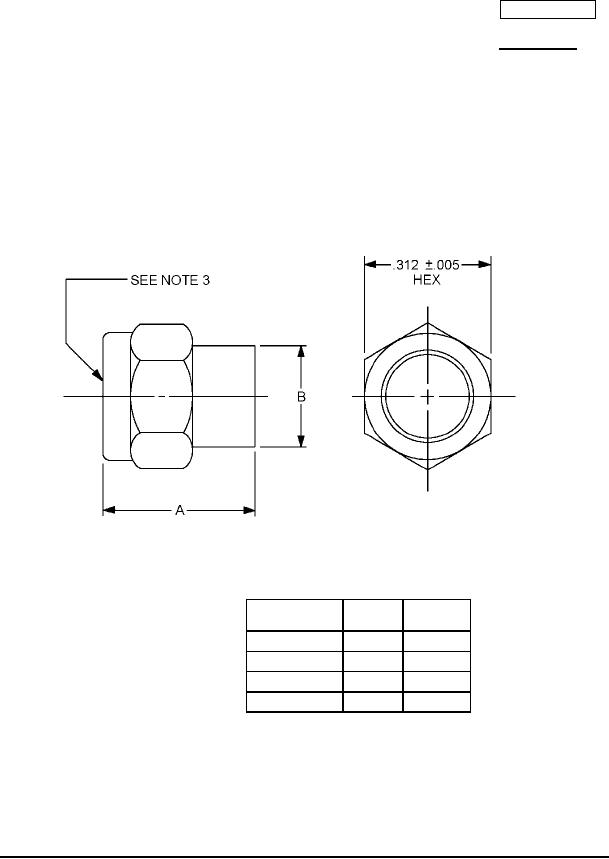
Inches
mm
.005
0.13
Dash
A
B
.27
6.9
number
max
max
.28
7.1
-01, -16
.73
.28
.312
7.92
.43
10.9
-02, -17
.73
.28
.56
14.2
-11, -22
.43
.27
.73
18.5
-15, -26
.56
.28
NOTES:
1. Dimensions are in inches.
2. Metric equivalents are given for information only.
3. Series SMA pin contact interface in accordance with MIL-STD-348.
4. Part or Identifying Number (PIN).
FIGURE 1. Dimensions and configuration, PINs M39030/3-01, -02, -11, -15, -16, -17, -22, and 26 (both N and S).
AMSC N/A
FSC 5985
For Parts Inquires submit RFQ to Parts Hangar, Inc.
© Copyright 2015 Integrated Publishing, Inc.
A Service Disabled Veteran Owned Small Business