
MIL-DTL-3922/60D
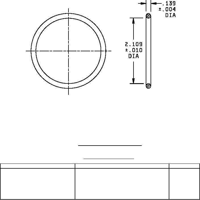
Inches
mm
.004
0.10
.010
0.25
.139
3.53
2.109
53.57
NOTES:
1. Dimensions are in inches. Dimensions are in accordance with ASME-Y14.5M.
2. Metric equivalents (to the nearest 0.01 mm) are given for general information only and are based upon
1.00 inch = 25.4 mm.
3. Gasket used with flanges M3922/60-001 and M3922/60-002.
4. Formerly MS PIN MS90064-15.
FIGURE 2. Gasket dimensions and configuration.
TABLE II. Materials supplied with flange.
Item
Description
Quantity
Gasket - - - - - - - - - - - - - - - - - - - - - - - -
Silicone rubber (see figure 2)
1
Socket-head cap screw - - - - - - - - - - - -
190-32, UNF-2A, .625 (15.88) long
6
Lockwasher - - - - - - - - - - - - - - - - - - - -
#10-.047 (1.19) thick
6
4