
MIL-DTL-87104C
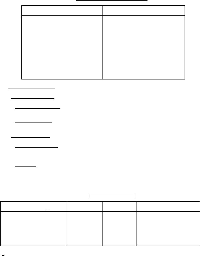
TABLE II. Individual tests for coaxial assemblies.
Test
Applicable paragraph
Examination of product, procedure V
4.6.3.1
Interface gauge
Leakage (contaminants), procedure III
VSWR, procedure III
Altitude compliance
RF insertion loss, procedure I
4.5.2 Sampling plans and tests.
4.5.2.1 Sampling test program.
4.5.2.1.1 Sampling plan schedule. Production equipment that have passed the individual tests shall be selected at
random in accordance with table III.
4.5.2.1.2 Sampling plan tests. Selected equipment shall be subjected to the tests, in the sequence listed, of the
applicable sampling plan in accordance with table IV.
4.5.2.2 Accept-reject criteria.
4.5.2.2.1 Sampling test program. Unless otherwise authorized by the acquiring activity in writing, the sampling test
program for any one sampling test group shall be completed and the test results shall show that the equipment(s) has
successfully passed the required tests prior to delivery of any equipment in that group.
4.5.2.2.2 Test failure. When any selected equipment fails to pass a specified test, the contractor shall stop the test
program and notify the acquiring activity of the test failure within 24 hours. Unless otherwise stipulated by the
acquiring activity, the failure of any one test in the test program shall be considered a failure of the test program.
When failure occurs, the contractor shall prepare a failure report which shall include a description of the failure, an
analysis of the cause of the failure, corrective action proposed, and the extent of retest proposed.
TABLE III. Sampling plan schedule.
Quantity of consecutively
Number tested
Total
Applicable
produced items 1/
per increment
tested
sampling plan
1 to 50
1
1
A
51 to 125
1
2
B
126 to 200
1
3
A
201 to 300
1
4
C
1 for each
Over 300
Variable
Repeat this sequence for
additional 100
sequence
each additional 100
1/ Quantity is taken on a continuous basis regardless of quantity on contract or individual order.
14
For Parts Inquires submit RFQ to Parts Hangar, Inc.
© Copyright 2015 Integrated Publishing, Inc.
A Service Disabled Veteran Owned Small Business