
MIL-DTL-3928/18D
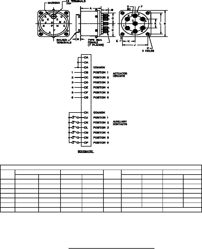
Dimensions
Inches
Millimeters
Inches
Millimeters
Letter
Letter
Max
Min
Max
Min
Max
Min
Max
Min
A
2.08
2.04
52.8
51.8
H
.692
.682
17.58
17.32
B
.33
.29
8.4
7.4
J
1.380
1.370
35.05
34.80
C
.692
.682
17.58
17.32
K
.55
.51
13.97
12.95
D
.880
.870
22.35
22.10
L
1.380
1.370
35.05
34.80
E
.20 R
.16 R
5.1 R
4.1 R
M
1.77
1.73
45.0
43.9
F
1.565 dia
1.555 dia
39.75 dia 39.50 dia
N
.35
.31
8.9
7.9
G
1.067 dia
1.057 dia
27.10 dia 26.85 dia
P
4-40 UNC-2B
.112-40 UNC-2B
NOTES:
1. Dimensions are in inches.
2. Metric equivalents are given for general information only (1.00 inch = 25.4 mm).
3. Metric equivalents are in parentheses.
4. Round corners of case may be squared.
5. Unless otherwise specified, tolerances are ± .005 (± 0.13 mm) for three place decimals and
± .02 (±0.5 mm) for two place decimals.
FIGURE 3. Outline and schematic drawing, PIN M3928/18-03.
4
For Parts Inquires submit RFQ to Parts Hangar, Inc.
© Copyright 2015 Integrated Publishing, Inc.
A Service Disabled Veteran Owned Small Business