
INCH-POUND
MIL-DTL-3928/11D
15 February 2011
SUPERSEDING
MIL-DTL-3928/11C
15 August 2001
DETAIL SPECIFICATION SHEET
SWITCH, RADIO FREQUENCY
TRANSMISSION LINE (COAXIAL) (ELECTRICALLY OPERATED)
CLASS 7
INACTIVE FOR NEW DESIGN
AFTER 6 SEPTEMBER 1966
This specification is approved for use by all Departments
and Agencies of the Department of Defense.
Requirements for acquiring the switch described herein
shall consist of this specification sheet and MIL-DTL-3928.
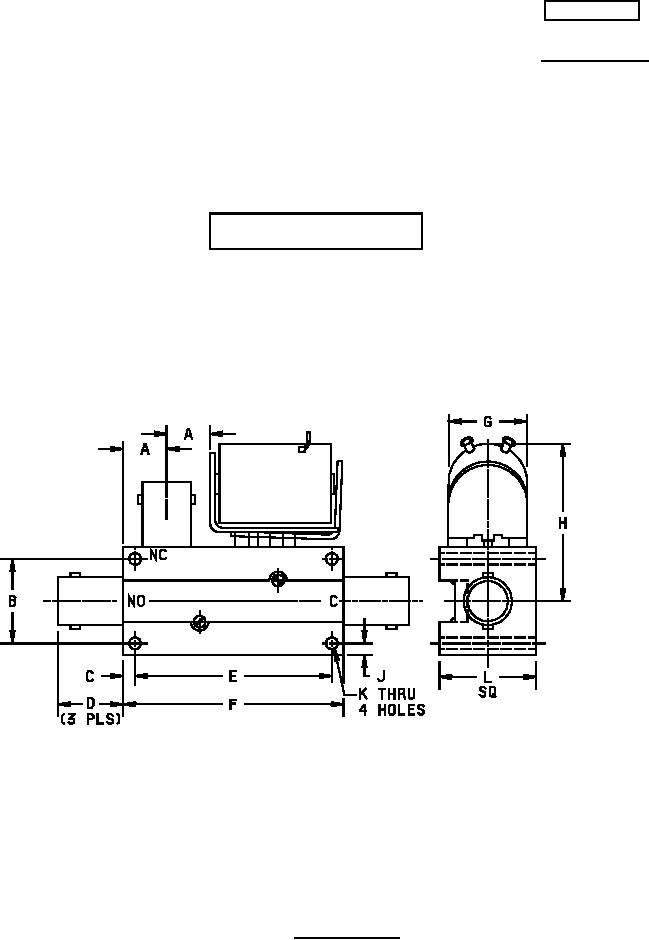
Position 1. (De-energized or fail-safe position),
C connects to NC connector.
Position 2. (Energized position),
C connects to NO connector.
FIGURE 1. PIN M3928/11-01.
AMSC N/A
FSC 5985