
INCH-POUND
MIL-DTL-3922/52D
16 March 2010
SUPERSEDING
MIL-F-3922/52C
6 March 2000
DETAIL SPECIFICATION SHEET
FLANGES, WAVEGUIDE (PRESSURIZABLE CONTACT)
This specification is approved for use by all Departments and
Agencies of the Department of Defense.
The requirements for acquiring the flanges described herein
shall consist of this specification sheet and MIL-DTL-3922.
A .TOL X TOTAL
C A B Ø TOL V M
P DIA.
8 PLS
A .004 TOTAL
K
CBORE
BREAK
E
E
A .004 TOTAL
DD DIA. X
SHARP
FF
D
D
.060 DEEP
EE
CORNERS
GG
H
B
G
C
R
S
T
U
A
G
F DIA.
H
2 PLS
63 4 SIDES
B
A
Z
MARKING
.010
.090 ± .030
A .020
TOTAL
.003
4 PLS
AA
C A B Ø TOL J M
BB
C A TDL JJ
A .02D
TOTAL
CC
-B-
B .020
TOTAL
L
TDL KK
C B TDL JJ
M
B TOL X TOTAL
-A-
-A-
GROOVED FLANGE
SECTION A-A
45°
B .004
TOTAL
N
± .5°
Y
B .004
TOTAL
HH
SECTION B-B
FLAT FACED
ALTERNATE CORNER
FLANGE
CONSTRUCTION
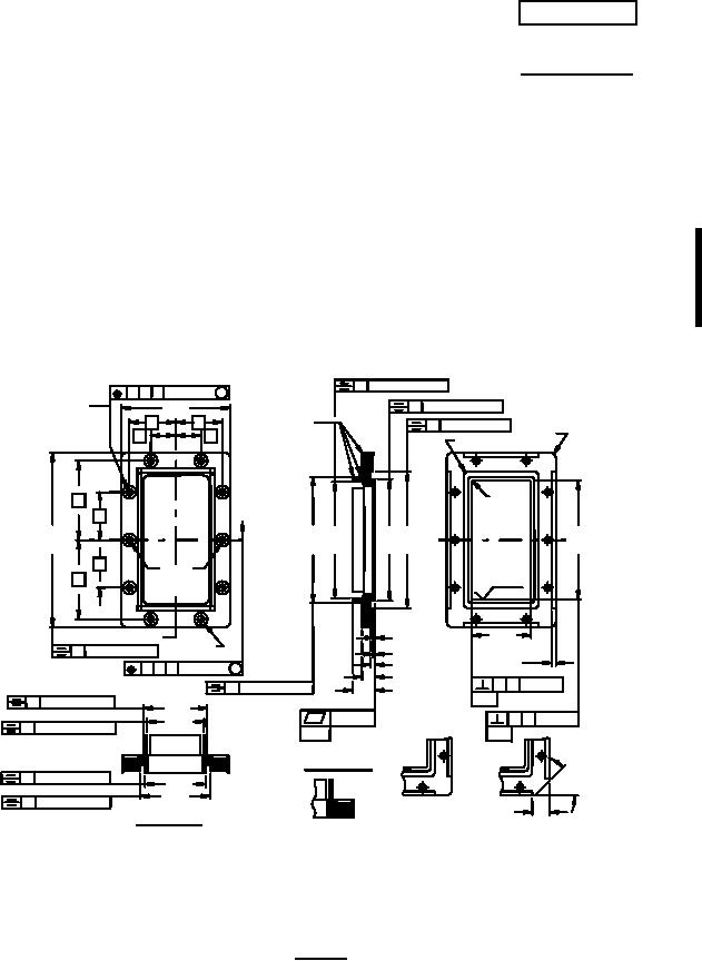
FIGURE 1. Flange.
AMSC N/A
FSC 5985
For Parts Inquires submit RFQ to Parts Hangar, Inc.
© Copyright 2015 Integrated Publishing, Inc.
A Service Disabled Veteran Owned Small Business