
INCH-POUND
MIL-DTL-23971/7A
23 April 2002
SUPERSEDING
MIL-P-23971/7
22 February 1980
DETAIL SPECIFICATION SHEET
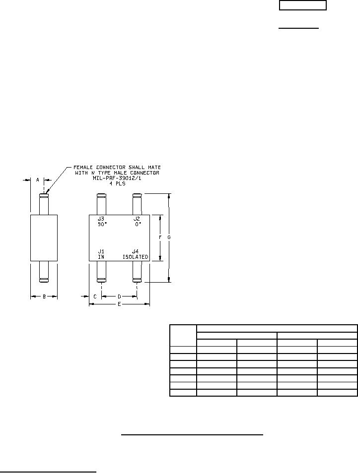
POWER DIVIDER, 4 PORT QUADRATURES, N CONNECTORS
This specification is approved for use by all Depart-
ments and Agencies of the Department of Defense.
The requirements for acquiring the power divider described herein
shall consist of this specification sheet and MIL-DTL-23971.
Dimensions
Inches
Millimeters
Max
Min
Max
Min
A
.380
.370
9.65
9.40
B
.76
.74
19.3
18.8
C
.355
.345
9.02
8.76
D
1.01
.99
25.7
25.1
E
1.71
1.69
43.4
42.9
F
1.31
1.29
33.3
32.8
G
2.51
2.49
63.8
63.2
NOTES:
1. Dimensions are in inches.
2. Metric equivalents are given for general information only.
FIGURE 1. Dimensions and configuration, dash number 01.
AMSC N/A
1 of 2
FSC 5985
DISTRIBUTION STATEMENT A. Approved for public release; distribution is unlimited.