
MIL-DTL-15370/10E
Inches
mm
.010
.25
.140
3.56
NOTES:
1. Dimensions are in inches.
2. Metric equivalents are given for information only.
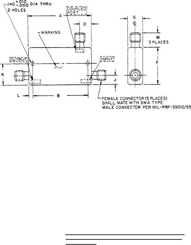
FIGURE 5. Dimensions and configuration for part numbers M15370/10-022,
M15370/10-025, M15370/10-026, and M15370/10-028 through
M15370/10-030.
5
For Parts Inquires submit RFQ to Parts Hangar, Inc.
© Copyright 2015 Integrated Publishing, Inc.
A Service Disabled Veteran Owned Small Business